2010
Umbau alter Bahnhof in Himmelreich
in Kirchzartzen / Himmelreich
Bauherr: Hofgut Himmelreich GmbH
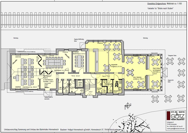
Nach Erwerb des alten denkmalgeschützen Bahnhofsgebäudes durch den Bauherren, sollen Schulungsräume sowie eine kleine Lehrgaststätte für eine integrative Berufsakademie des Hofgutes Himmelreich sowie ein Kiosk und Verwaltungsräume integriert werden.
Machbarkeitsstudie, Entwurf.
Umbau alter Bahnhof in Himmelreich
in Kirchzartzen / Himmelreich
Bauherr: Hofgut Himmelreich GmbH
Nach Erwerb des alten denkmalgeschützen Bahnhofsgebäudes durch den Bauherren, sollen Schulungsräume sowie eine kleine Lehrgaststätte für eine integrative Berufsakademie des Hofgutes Himmelreich sowie ein Kiosk und Verwaltungsräume integriert werden.
Machbarkeitsstudie, Entwurf.















