2011 / 2013
Sommerberghalle: Einbau von Räumen für die Kleinkindgruppe sowie komplette Brandschutzsanierung
in Buchenbach
Bauherr: Gemeinde Buchenbach
Erweiterung des Kindergartens Buchenbach durch Einbau von Betreuungs- und Ruheräumen für die Kleinkindbetreuung.
Brandschutzsanierung mit Einbau einer flächendeckenden Brandmelde- und Sprinkleranlage.
Planung, Bauantrag, Werkplanung, Ausschreibung, Bauleitung.
Ausführung ab 09/2012 im Bau
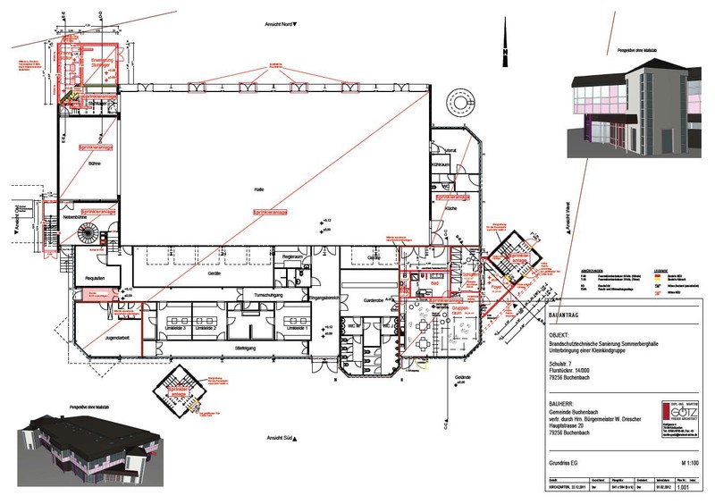
Sommerberghalle: Einbau von Räumen für die Kleinkindgruppe sowie komplette Brandschutzsanierung
in Buchenbach
Bauherr: Gemeinde Buchenbach
Erweiterung des Kindergartens Buchenbach durch Einbau von Betreuungs- und Ruheräumen für die Kleinkindbetreuung.
Brandschutzsanierung mit Einbau einer flächendeckenden Brandmelde- und Sprinkleranlage.
Planung, Bauantrag, Werkplanung, Ausschreibung, Bauleitung.
Ausführung ab 09/2012 im Bau













